top of page

Münsterstrasse
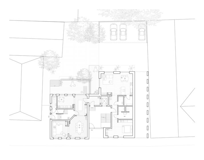
Sanierung einer Bestandsvilla mit angrenzendem Neubau.
Lage: Bramsche, Niedersachsen
Kategorie: Sanierung und Neubau
Leistungsphasen: 1 - 5
Zeitraum: 21
Status: In Planung
BGF: 420qm
Die Bramscher Innenstadt im Wandel. Geprägt von freistehenden Villen und Patchwork-Architektur aus verschiedenen Epochen, wird die Innenstadt derzeit durch moderne Bauten, die sich der Umgebung anpassen ergänzt. Unmittelbar an der Innenstadt von Bramsche wird eine historische Villa saniert und mit einem Neubau kombiniert.

bottom of page
